トーワエレックス株式会社 様
トーワエレックス株式会社様は、従業員のコミュニケーション活性化や社外へ向けたイメージアップ、オフィスの老朽化対応のため2022年6月に本社オフィスの移転を実施しました。
当社では、構想策定コンサルティングから、オフィスレイアウトのご提案〜実行までのプロジェクトマネジメント支援、各種什器の選定・設置、引っ越し作業などを支援しました。
まず最初に幹部へのインタビューや従業員の方々とのワークショップを実施し、現状のオフィスの課題を明確化した上で、新しいオフィスの方向性を定めました。皆が共通認識をもってオフィスの移転に進むことができました。
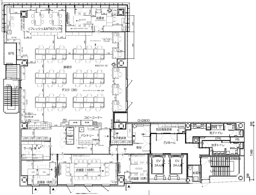
■執務席数:41席 ■フロア面積:約440m²(約133坪)
オフィスの移転に際し、まずは構想策定コンサルティングを実施し現状の課題と要望を整理しました。
構想策定コンサルティングの流れ
現状オフィスの基本調査
トップインタビュー
「幹部視点」課題・要望の整理
ワークショップ
「従業員視点」課題・要望の整理
コンセプト策定




従業員投票結果のまとめ(環境カテゴリー)


構想策定コンサルティングで定まった新しいオフィスの方針から、全体レイアウトを設計。デザインやカラーをご提案し、エリアごとに什器を選定し仕様を決定しました。

CGイメージ

施工完了時
こだわりのエントランスは、企業の顔としてシンプルで清潔感のあるスタイリッシュなデザインへ。
施工前に制作したCGでの完成イメージと同等の仕上がりを実現しました。社名ロゴはコーポレートカラーのグリーンを採用し、照明を活用して目立つように工夫しました。
また指静脈認証で開閉できる自動ドアを導入し、高いセキュリティレベルを確保しています。


デスクトップパネルを新たに導入し、視線や音を防ぎ集中できる環境づくりをしました。
デスクの天板は木目調で統一、チェアーのカラーはエリアごとに色分けをするなどお客さまからのご要望を反映しております。また、電話や会議時の声漏れの対策としてソロブースを導入しました。


眺望の良い窓際に、ランチや気軽な会話を楽しめるリフレッシュスペースを新設しました。
移転前のオフィスでは会議室が不足していたため会議室を増やしました。大人数の会議用に18人用会議室(写真右)とともに、エントランスから直接アクセスできる来客用の応接会議室も用意しました。


社長室は高級感のある什器とカラーで統一。間仕切りはすりガラス調でプライバシーを確保し、役員応接室としても活用できる場としました。

株式会社日立製作所、日立GEニュークリア・エナジー株式会社など日立グループ他の製品を多岐に亘る市場に幅広く販売する総合技術商社です。
場所:本社オフィス
対象期間:2021年6月〜2022年6月(13か月)